Coffee battle percolating as 7 Brew and Dutch Bros plan new drive-thru locations in York County
Perhaps you’d rather sit down and relax at a new Waffle House instead

Several rapidly expanding coffee brands will soon call York County home, as popular chains 7 Brew and Dutch Bros Coffee are planning competing drive-thru locations along the George Washington Memorial Highway business corridor. Planning documents provided by the county in response to a Freedom of Information Act (FOIA) request indicate that 7 Brew is planning to set up shop in the Tabb community while Dutch Brothers is headed to Grafton. And for good measure, there’s a new Waffle House planned in the county too at the intersection of Rt. 17 and Ft. Eustis Blvd.
7 Brew
100 Josephs Drive
Founded in 2017 and headquartered in Springdale, Arkansas, 7 Brew is a quick-service drive-thru beverage chain that, according to the company, is built around speed, friendly service, and a mission to “Cultivate Kindness.” The brand now operates over 600 locations across 38 states. In 2025 alone, it opened 280 new stands, with industry tracker Technomic ranking it the fastest-growing restaurant chain in the United States that year. In Virginia, the chain has established 13 locations across nine cities, including Midlothian, Harrisonburg, Lynchburg, and Newport News, among others.
The concept centers on a double drive-thru lane model and a beverage-only menu with over 20,000 possible drink combinations. Industry analysts have linked this model to the broader “snackification” trend, in which consumers increasingly seek customizable sweet beverages between traditional mealtimes. For example, 7 Brew can customize orders across a menu spanning espresso drinks, proprietary energy drinks, sodas, teas, lemonades, smoothies, and shakes.
Engineering plans dated January 16, 2026 detail a double drive-thru facility on a General Business-zoned parcel outside any high-risk flood zone. The site includes concrete and asphalt surfaces, traffic markings, a chain-link fence, and pavement striping in red, blue, and white. Infrastructure calls for sanitary and storm sewer systems and a grease interceptor. A 20-foot landscaping buffer will feature bioretention plantings, ornamental grasses, and trees including Baldcypress, Eastern Red Cedar, and River Birch. Lighting will be provided by 25-foot poles on concrete bases. As of the county’s most recent response, the latest submittal by the applicant had not yet received staff comments.
Dutch Bros Coffee
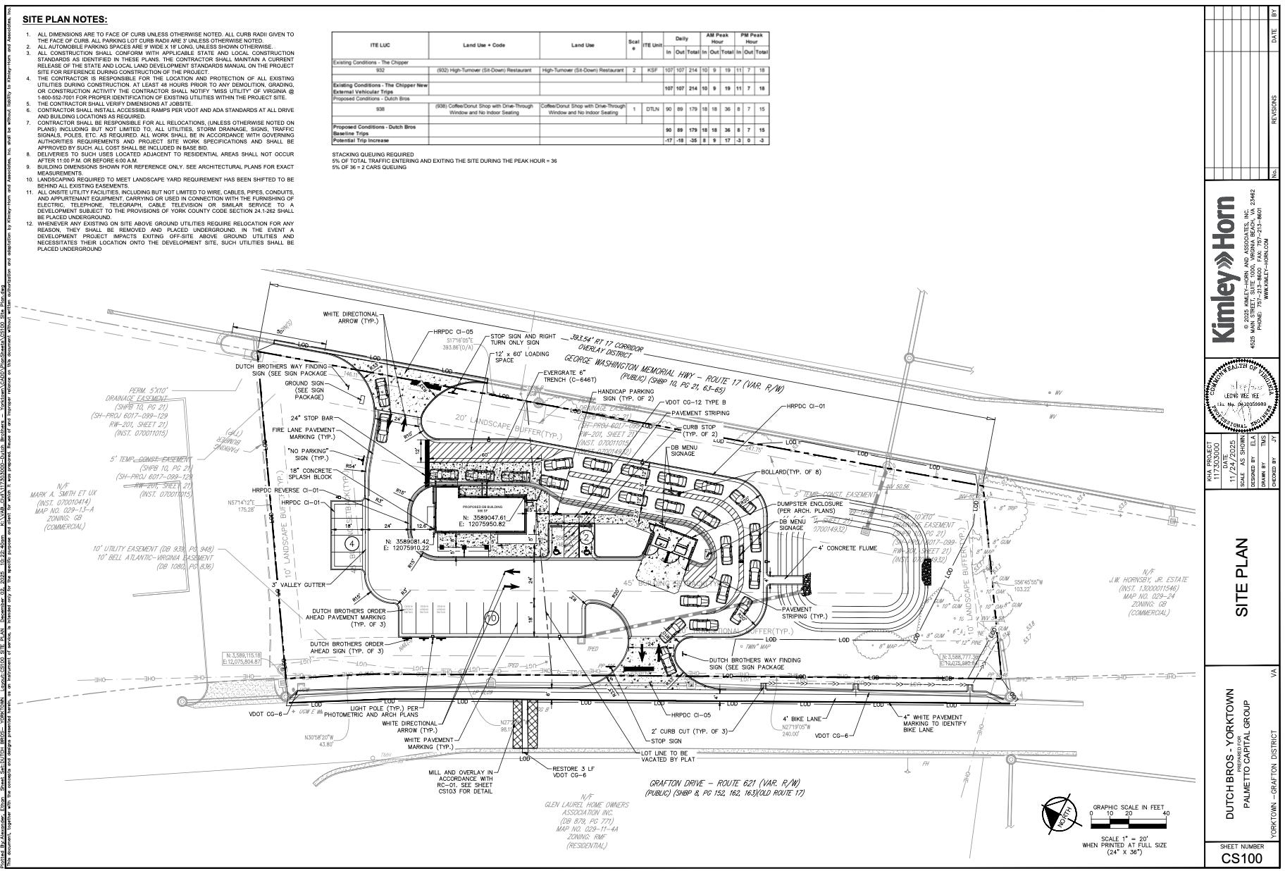
5619 and 5091 George Washington Memorial Highway

As first reported by the Williamsburg Independent in October 2025, the popular chain Dutch Bros Coffee is also planning to set up shop in York County. Founded in 1992 and headquartered in Oregon, Dutch Bros is a quick-service drive-thru coffee chain that, according to the company, is built around a mission to “make a massive difference, one cup at a time”. The brand now operates over 1,000 locations nationwide. Industry analysts have expressed confidence in the chain, calling it one of the most promising performers in the fast-casual restaurant sector due to steady growth supported by new menu offerings. Like 7 Brew, the Dutch Bros Coffee concept centers on a drive-thru design, quick-service model and a menu offering highly customizable beverages across a menu spanning specialty coffee, cold brew, proprietary Dutch Bros Rebel energy drinks, sodas, teas, and lemonades. In Virginia, the chain is also reported to be planning locations in the Richmond and Roanoke areas.
Engineering plans dated November 24, 2025 detail a 986-square-foot drive-thru facility on a General Business-zoned parcel. The site includes concrete and asphalt surfaces, traffic markings, ADA-compliant ramps, and pavement striping. Infrastructure calls for sanitary and storm sewer systems and a 75 GPM Schier grease interceptor. A 20-foot landscaping buffer will feature shrubs, and trees including Red Maple, Willow Oak, Northern Red Oak, and Southern Magnolia. Lighting will stand less than 25 feet tall. As of the county’s most recent response dated January 9, 2026, the latest submittal by the applicant had received several staff comments requiring revisions prior to approval.
One of the addresses listed on the applicants plans is the current site of The Chipper Beer Battered Fish and Chips restaurant, though the plans for that establishment are not known to the writer.
Waffle House
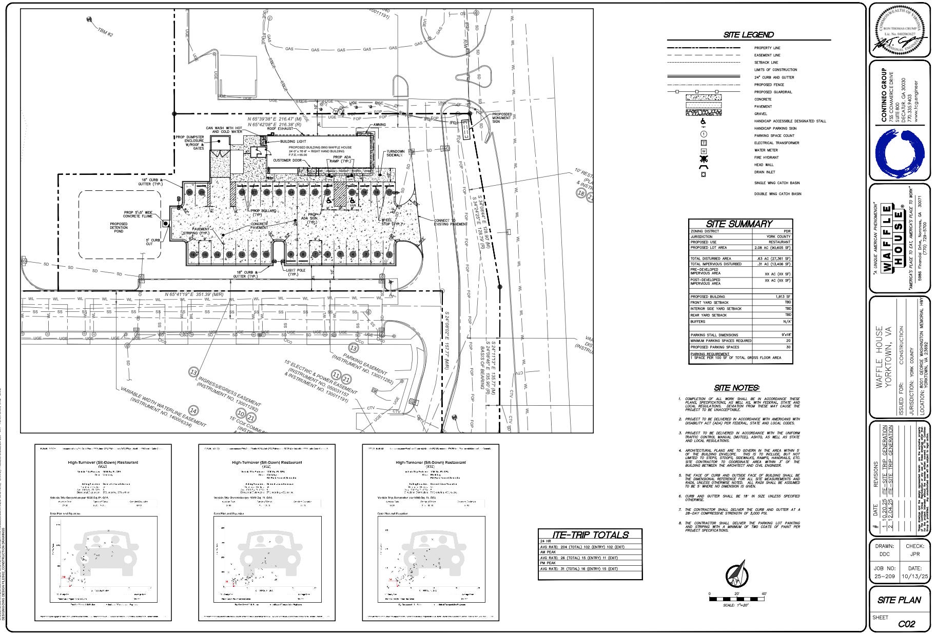
8001 George Washington Memorial Highway

A Waffle House restaurant is proposed within the Yorktown Arch Planned Residential Development along George Washington Memorial Highway. The new restaurant will be one of over 1900 run by the company, most with the brand’s distinctive architecture. Indeed, plans provided by the county detail a roughly 24-by-76-foot building on a 2.08-acre parcel that’s part of the housing development. Plans also indicate that the site falls outside any high-risk flood zone and includes asphalt and concrete surfaces, a grease interceptor, dumpster enclosures, and landscaping and lighting plans.
In a letter dated January 30, 2026, York County staff outlined several revisions required before the project can move forward. Planning and zoning reviewers called for a sidewalk connection linking the site to the adjacent Yorktown Arch apartments, submission of a Route 17 Overlay District application with color renderings showing facade treatments and roofline variations, and confirmation that parking areas include proper landscape islands. Fire and life safety requirements include widening drive aisles to a minimum 33-foot inside turning radius, maintaining clearance around fire hydrants, and installing a Knox Box for emergency access.
Stormwater reviewers noted the property sits within both a Resource Management Area and a Watershed Protection Area, requiring the applicant to submit drainage calculations addressing water quantity, quality, and stormwater management capacity. Temporary construction entrances must also be extended to at least 70 feet. Utility plans must be updated to include sanitary sewer flow data and pipe material specifications, and a Public Sewer Extension Agreement must be executed before construction begins. VDOT separately requires the right-of-way to be clearly delineated and additional detail on how the site’s waterline will tie into existing pavement.
The writer used AI tools to summarize planning documents provided by the county in response to a Freedom of Information Act request as well as brand websites.
Other ways to support the Williamsburg Independent:
