Williamsburg Independent

Williamsburg Independent

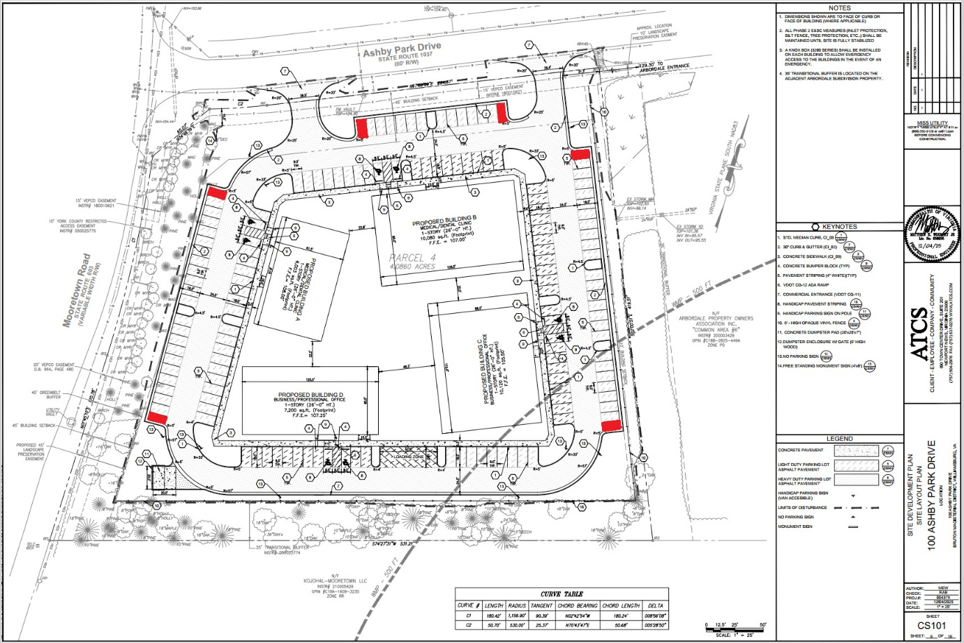
Ashby Park medical complex in York gets county staff feedback

Plans for four-building, 33,403-square-foot medical and professional office development must still address several infrastructure and environmental issues

Williamsburg Independent
Mar 11, 2026
∙ Paid
Medical offices and professional suites across four buildings are proposed for cleared land located at 100 Ashby Park Drive. (Image provided by York County)
User's avatar

Continue reading this post for free, courtesy of Williamsburg Independent.

Or purchase a paid subscription.
© 2026 Williamsburg Independent · Privacy ∙ Terms ∙ Collection notice
Start your SubstackGet the app
Substack is the home for great culture